Projects
Contact
Projects
Contact
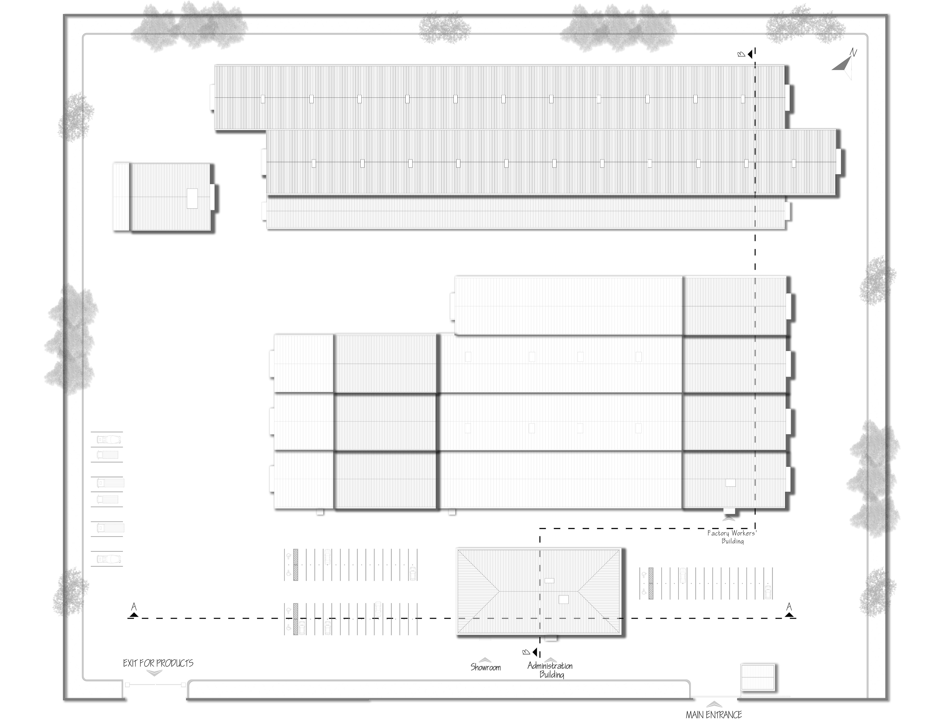
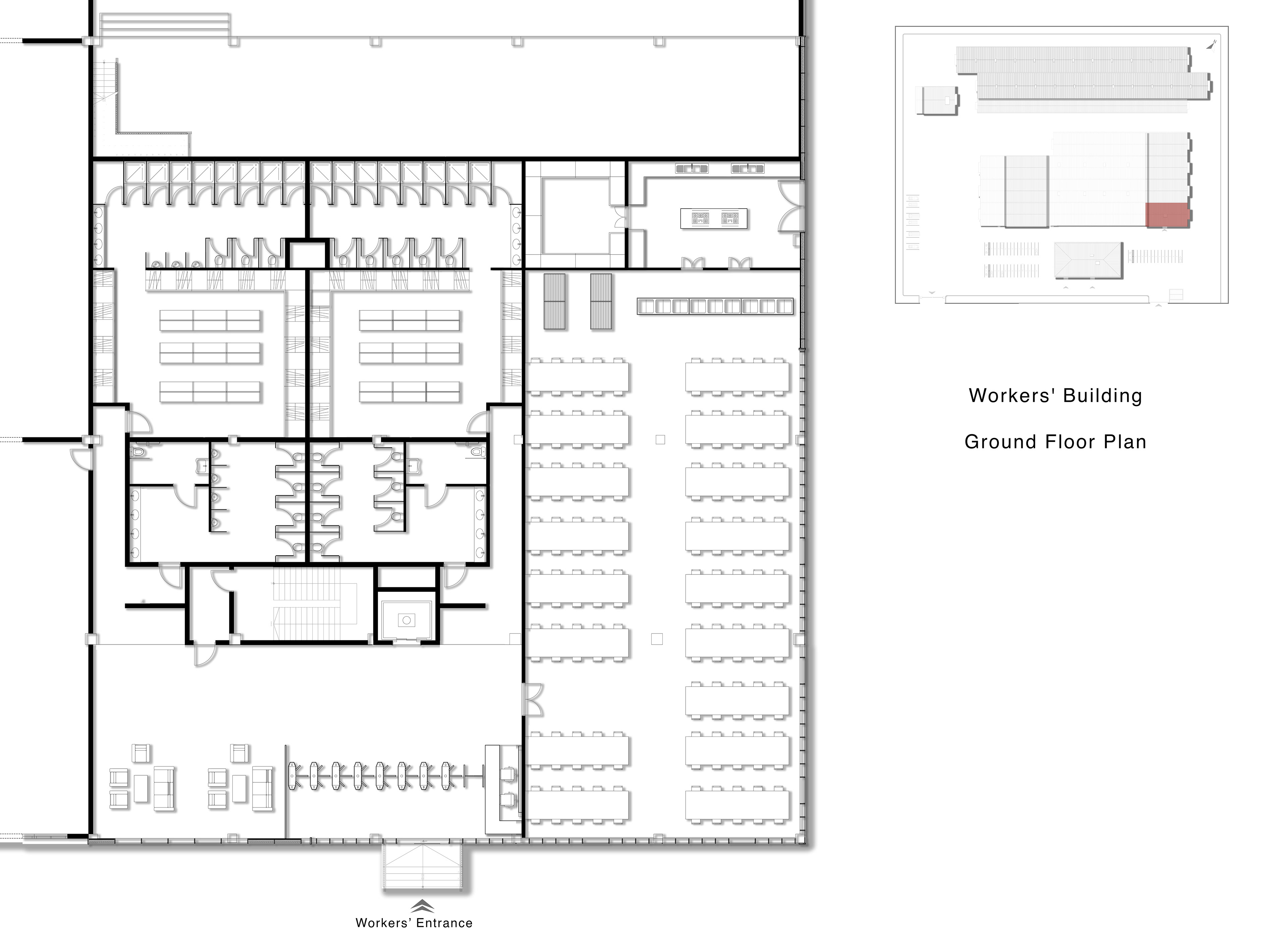
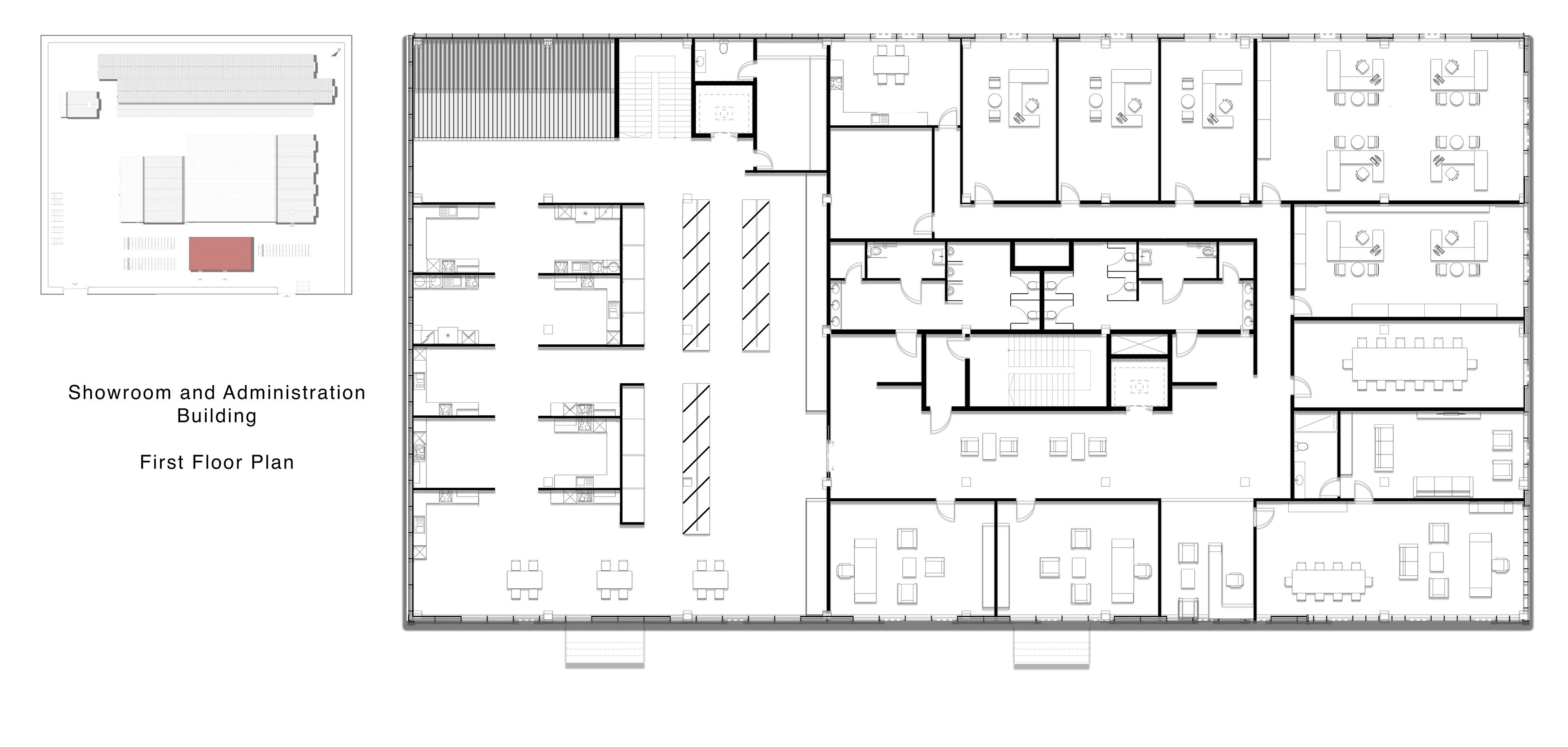
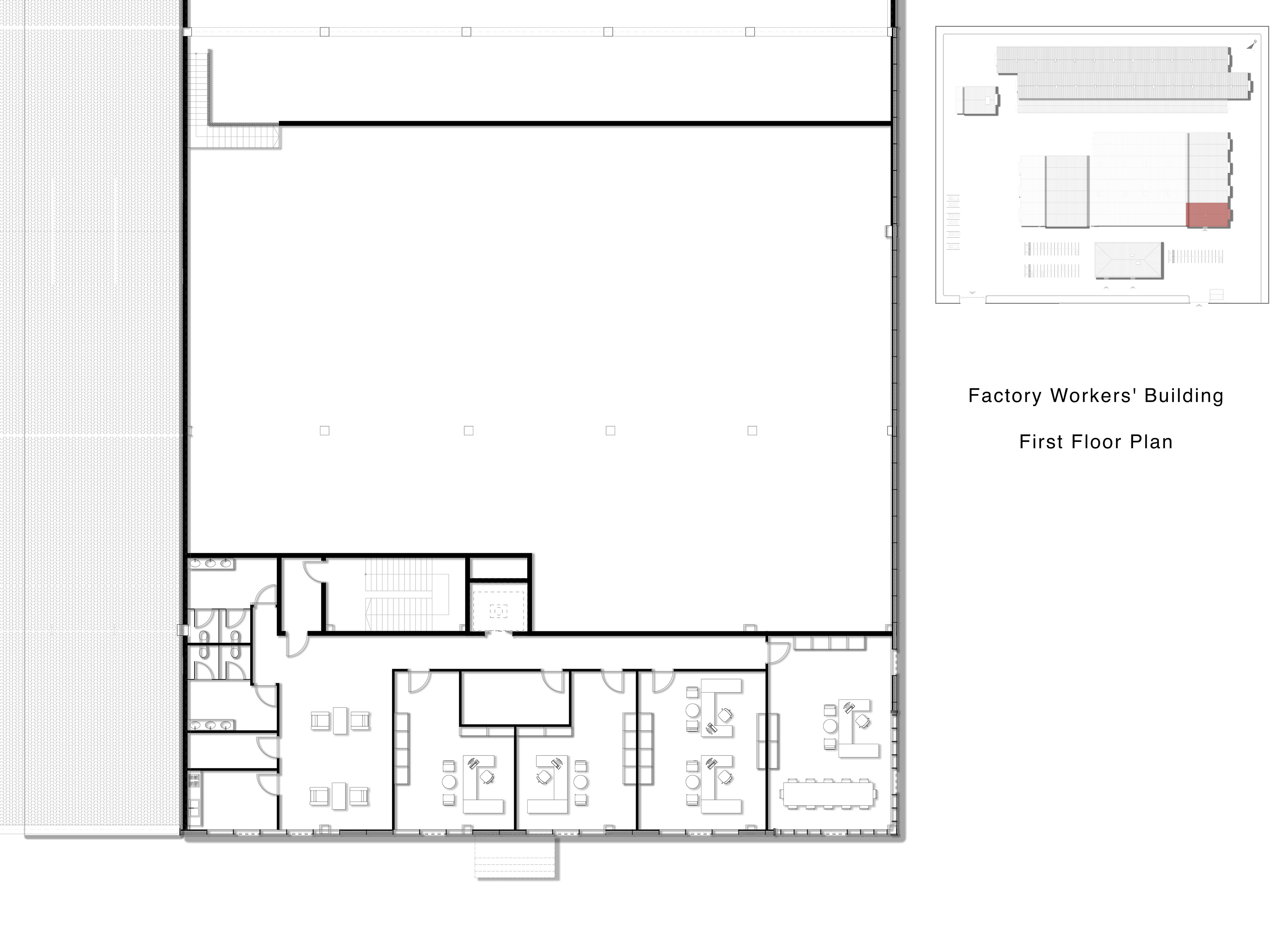
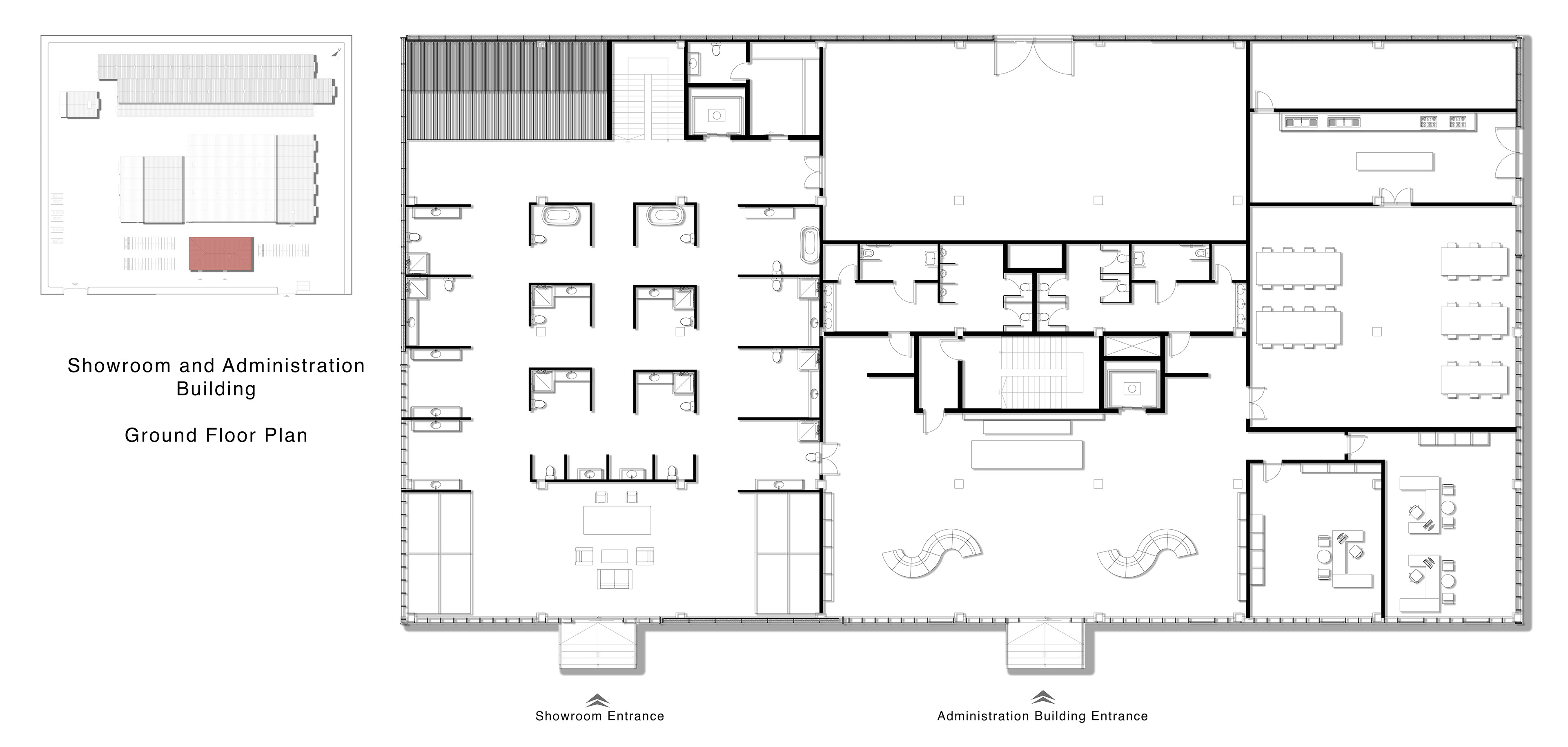
Ceramic Factory Building
Site Plan
Section AA
Section AA - Showroom and Administration Building
Section BB
Section BB - Administration and Workers' Building
↑
Back to Top