
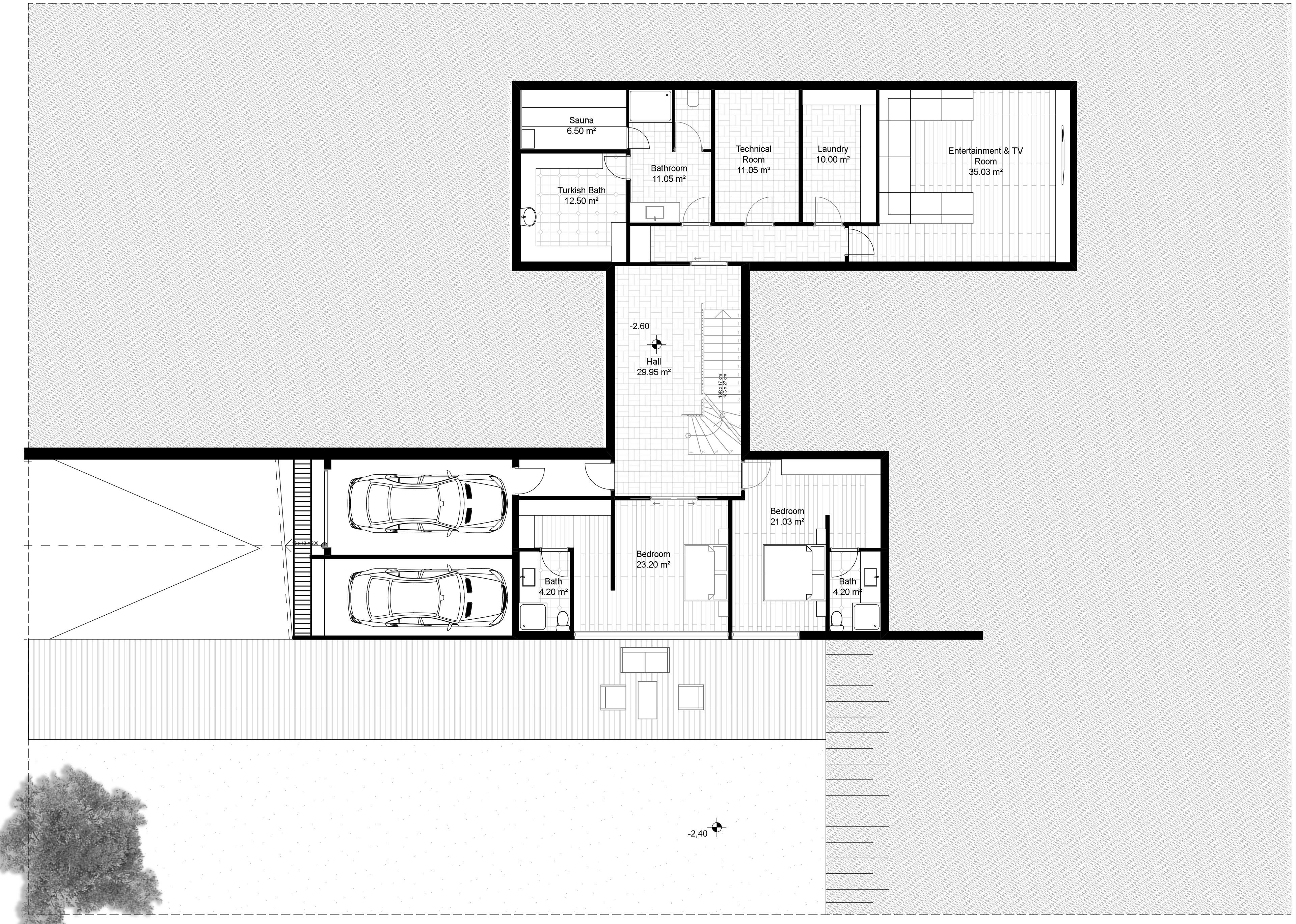
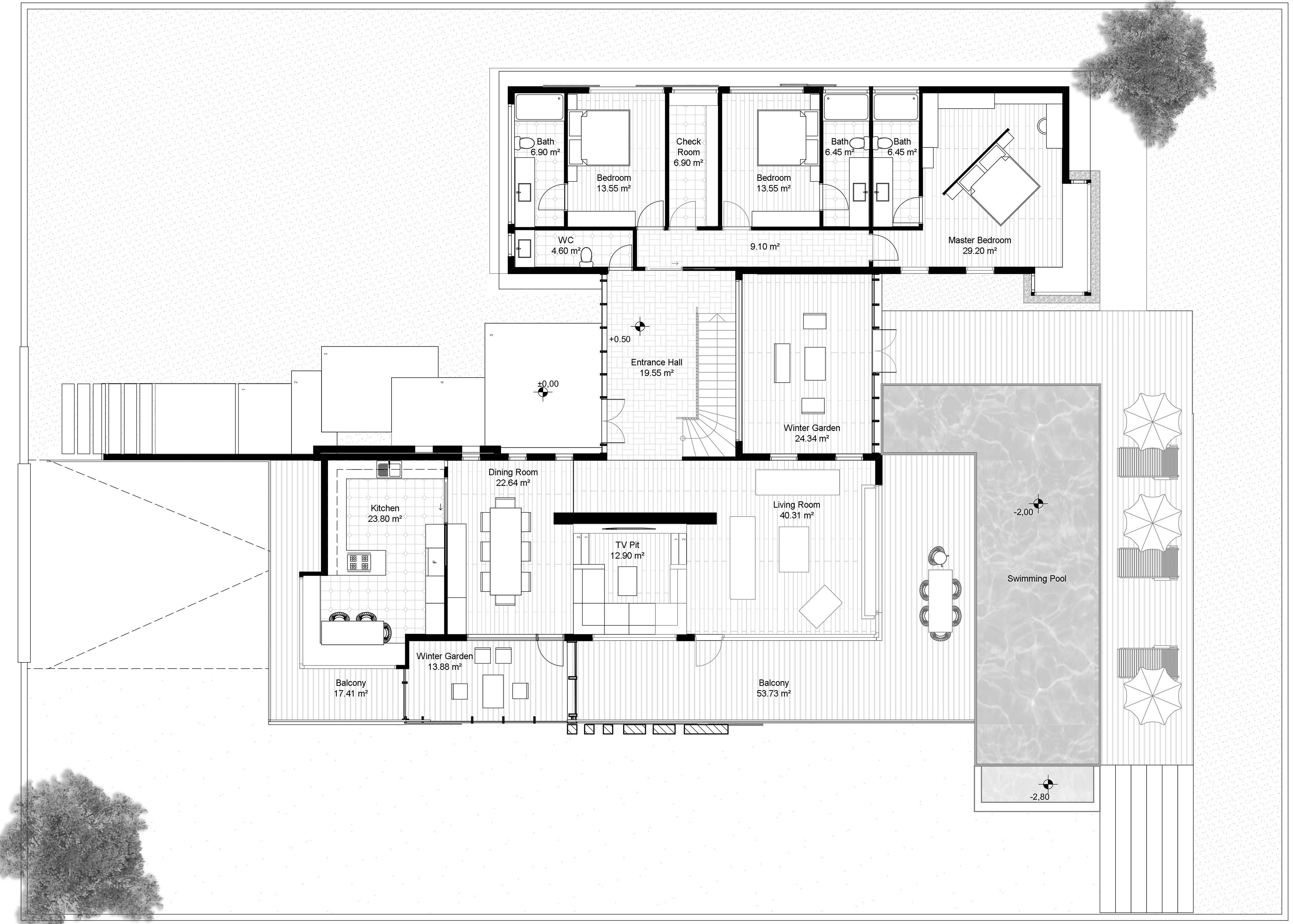
The project was designed as a single family house. Following the client’s brief, the separation between the private quarters and common living spaces was emphasized on the ground level, resulting in two horizontal masses with a connection in between. The connecting space also hosts stairs for vertical circulation with a transparent facade.




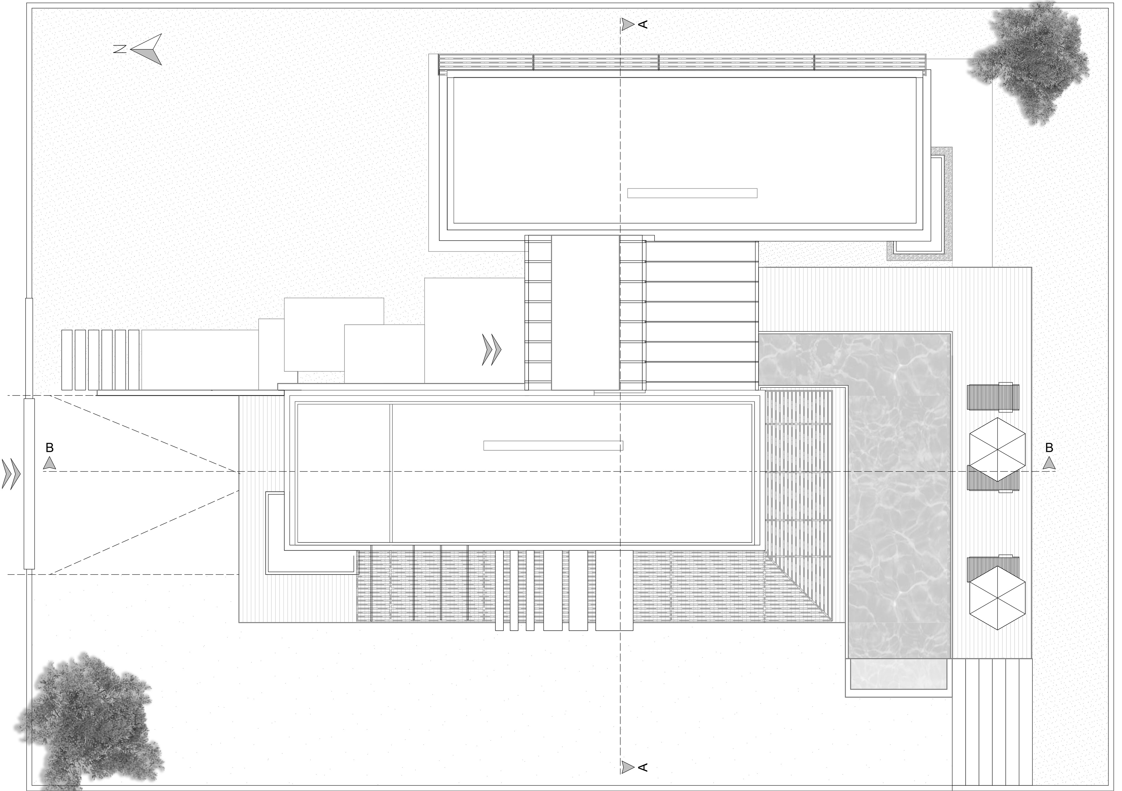
Site Plan

Basement Floor Plan

Ground Floor Plan

AA Section

BB Section

West Elevation

South Elevation

East Elevation

North Elevation